miliamperios.com

Bootstrap Framework 3.3.6

Más de una docena de componentes reutilizables construidos para proporcionar iconografía, menús desplegables, grupos de entrada, navegación, alertas, y mucho más ...

Fundado el 22 de Septiembre del 2003.

Moderador: Moderadores

Por viajero
#1064538
Buenas a todos.

soy un apasionado de los modelos que tienen algo de historia, y disfruto construyendo, actualmente estoy algo parado y no se que construirme, alguna idea???

como dije antes no encuentro un modelo que me convenza, y sigo buscando, a ver si sale alguno, los warbirds de siempre (p47, spitfire, f4U, p40, bf109) ya no me atraen y los WW1 no me atraen mucho, no se ando bastante parado, pero con ganas de embarcarme en algun proyecto.
Última edición por viajero el Vie, 15 Jul 2011 21:44, editado 1 vez en total.
Avatar de Usuario
Por Roberto Hector
#1064577
Hola viajero, yo estoy igual solo que mi problema es de atasco mental de aviones...cada día me levanto con ganas de uno diferente...StabiloplanIV...Hütter 17...Stinson Reliant...Piper Colt....Fokker FVIII...Bristol Frighter....Caudron 630....Bernard 207...Quickie....Rearwin Speedster....Vulteee..Yak 6...etc. etc, etc...Saludos
Por viajero
#1064596
es algo diferente, que modelo es???, estaba desde hace tiempo pensando en algo asi, no se si conoces el Saab j21, me lo plantee en su momento, es bastante interesante el cacharrillo.
Avatar de Usuario
Por Roberto Hector
#1064598
...a mí nunca me preguntes porque todo lo que se construyó hasta los 50/60 y que sea poco visto, me gusta. Cuánto más raro, extraño y "feo"...más me gusta.
Pero nada de planos...si hay plano es que es conocido....disfruto tanto haciendo el plano como construyendo. Aquí van unas joyitas de esas un tanto extrañas pero que quiero hacer.
La única pega es que de algunos casi no hay información.
Saludos.
Adjuntos
babcock-vlchek.jpg
KN_1929_Flywing_Draw_Mini_Tscheranovski BiTsch7a.jpg
Lippisch Delta 1.jpg
money MODEL AX LOW WING.jpg
money MODEL AX LOW WING.jpg (44.19 KiB) Visto 2602 veces
Por viajero
#1064659
curiosos y bonitos, en especial el ala volante semicircular, ummm, otro modelo mas a tener en cuenta.
Avatar de Usuario
Por Carlos Urbano
#1064675
Vaya, ahí coincidimos, todo lo que sea raro, bizarro y retro me llama mucho la atención, si encuentro alguna idea interesante para tu construcción te la digo, aunque yo soy mas de la WWI no descarto esos curiosos y poco vistos modelos.
saludos
Por viajero
#1064772
pero el potez 54 no es un bombardero bimotor??, creo que es el potez 75, al final lo encontre, habra que estudiarlo, por que seria una buena opcion.
Avatar de Usuario
Por Roberto Hector
#1064783
Hace tiempo que tengo ganas de uno de pasajeros "grandecito" pero monomotor. Del Fokker y el Latecoere empecé a hacer parte del plano. También tengo ganas de otro bimotor pequeño con dos .10 que tengo por ahí.Saludos
Adjuntos
farman 170.jpg
Fokker F7a.jpg
Latecoere 28.jpg
short_scion.jpg
VulteeV-1.jpg
yak6.jpg
#1064789
Bueno ya que estamos para ver que modelos puedes hacer, yo me decantaría por modelos españoles, ya que como dices solo se ven por ahí 109's, spits, zeros, mustangs, etc,etc, concretamente en mi afán de buscar modelos para hacer encontré el Hispano Aviacion HA-100 Triana http://www.google.es/imgres?imgurl=http ... 29,r:2,s:0 , http://www.aviationcorner.net/show_photo.asp?id=179253 y el hispano Suiza Hs-42 http://www.aviationcorner.net/show_photo.asp?id=170047, (enlace de fotos) http://www.aviationcorner.net/gallery.a ... ype_id=763 o su derivado el Hs-43 (tren retractil) http://www.aviationcorner.net/show_photo.asp?id=170315
Ambos modelos enteramente españoles de postguerra con el Hs-42 que estaba inspirado en el Fokker D-XXI, y el Ha-100 diseñado por Willy Messerschmitt allá por el año 1953 del que luego derivaría al conocido como Ha-200 Saeta primer reactor fabricado enteramente en españa. Espero os gusten y alguien se anime a hacer plano y montar estos españolitos jeje :)
Saludos.
Por sesa11
#1064801
Del Short Scion hay un plano bastante bueno gratis en flyrc.com, es para deprom, pero se podria adaptar bien a mas tamaño.
Por viajero
#1067494
Al final me lio con el potez 75, ya se que apenas tiene historia, pero el diseño y el ser uno de los descartados para su uso en la aviacion real, pudo con el resto.

He pensado montarlo con un 91, con lo que debere cambiar bastante el diseño del plano que me envio el amigo justino, asi que ya estamos en ello.
El ala habia pensado darle una envergadura de 1,8 metros y una cuerda de 30 cm, con un perfil Naca2412, creo que es una buena opcion, ya que creo que conseguire una buena sustentacion y bajo bastante la resistencia del ala, en comparacion con un 2415, que es aproximadamente el que lleva.
Avatar de Usuario
Por Roberto Hector
#1068715
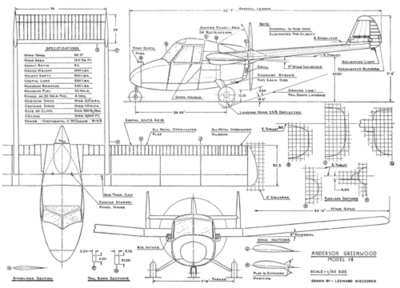
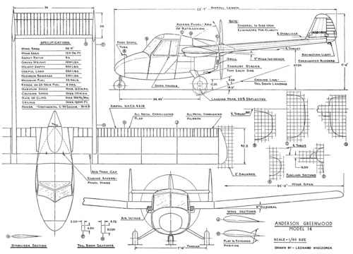
Mira qué casualidad, porque justo en estos días cae en mis manos una tripala "pusher" y estuve mirando modelos que tenía en una carpeta...y apareció algo muy parecido a tu Potez, el "Anderson Greenwood".
Saludos.
Adjuntos
normal_Anderson-Greenwood-14.gif
Avatar de Usuario
Por JUSTINO FLORES
#1068737
pues tambien me gusta.........pero como ya comenté a viajero por mp, el problema que yo veo es como ensamblar las vigas de las colas en el ala para que quede algo sólido y sin holguras....... y a la vez desmontables , al menos las partes exteriores de las alas , para un mejor transporte. Si alguien sabe como hacerlo y cuelga fotos... me animo yo tambien con el Potez (q tengo el plano) jeje. No he sido capaz de imaginar la cosa y por ello no me he decidido nunca a comenzar.
Creo que ambos , el Anderson y el Potez son un bonito ejercicio de taller, no?
Avatar de Usuario
Por Roberto Hector
#1068939
Yo sigo atrancado, sin tener claro qué construir, pero tengo ganas de ver un motor radial en el morro, así que hice un planito para empezar a hacer un Dummie radial de 5 cilindros con un Saito 65 de los viejos.
Si lo termino, después lo tengo más fácil...solo necesito buscar aviones con este tipo de motores...que debe haber como mil.... :? Saludos
Adjuntos
Saito FA65x5.jpg
Por sesa11
#1068943
Roberto Hector escribió:pues tambien me gusta.........pero como ya comenté a viajero por mp, el problema que yo veo es como ensamblar las vigas de las colas en el ala para que quede algo sólido y sin holguras....... y a la vez desmontables , al menos las partes exteriores de las alas , para un mejor transporte. Si alguien sabe como hacerlo y cuelga fotos... me animo yo tambien con el Potez (q tengo el plano) jeje. No he sido capaz de imaginar la cosa y por ello no me he decidido nunca a comenzar.
Creo que ambos , el Anderson y el Potez son un bonito ejercicio de taller, no?
No creo que fuera muy complicado, hacer desmontables las alas. Tienes el plano en formato digital para echarle un vistazo?
Avatar de Usuario
Por JUSTINO FLORES
#1069034
Pues no, Roberto, solo en papel y a tamaño 1:1. No tengo herramientas para digitalizarlo. si quieres puedo escanearlo por partes y colgarlo en JPG , no se hacer mas...
Por sesa11
#1069068
No escanees nada.. que quedan los planos feos.
De momento era por curiosidad, si necesito una copia, estoy cerca de ti, ya hablaremos.
Avatar de Usuario
Por mvadillos
#1069077
Justino: En la papelería que hay en la Avda de Requejo, te lo digitalizan.
Por viajero
#1069193
buenas, al fin pude conectarme.

me plantee el digitalizarlos peroooo, puf salian de pena para luego vectorizarlos, asi que estoy en plena fase de dibujo, con unas pequeñas modificaciones para adaptarlo al 91, vamos que me gustan sobremotorizados, el fuselaje ya esta casi terminado (el dibujo), y ahora estoy con las alas.

y pensando en el sistema de anclaje, una opcion seria poner dos tuercas de plastico en la costilla sobre la que apoya, pudiendo asi atornillarlas con dos tornillos de nylon.

otra seria utilizar un sistema parecido al tren, colocando un trozo de contrachapado entre dos costillas con tuercas empotrables.

por lo demas, tambien he ampliado la cuerda del ala, ya que segun vi en las fotos que puedo ver por la red, la ala llega hastala parte final del fuse, con lo que o bien se retrasa o bien se le da mas cuerda, y como he de reforzar para poder ponerle el motorcillo, pues decidi ampliar la cuerda.

voy a ver si coloco el dxf del fuse y lo criticais para poder mejorarlo.
lo consegui
Adjuntos

[La extensión zip ha sido desactivada y no se mostrará en adelante]

Avatar de Usuario
Por Roberto Hector
#1069236
Está muy bien. Si lo vas a hacer semi-escala, puedes bajar el ala para que el fuselaje te quede más fácil de resolver, pero así tampoco presenta problemas.
Es evidente que se trata de un modelo de los que te va a hacer pensar un rato como resolver partes de la construcción, pero merece la pena.Saludos
Adjuntos
Potez.jpg
Por viajero
#1069286
la idea es hacerlo semiescala, pero variando pocas cosas, no tengo manos aun para hacer uno a escala realmente bien, me falta mucho por aprender.

como bien dice justino, lo mas dificil va a ser el anclaje de las dos colas, pero algo saldra.
a ver si termino el plano del ala y asi mas o menos se vera algo mas claro todo el proceso
Por viajero
#1070186
buenas.

aqui os dejo el dibujo del ala, (un lado y la parte central) y las costillas, seguro que estoy equivocado en algo.

en cuanto a la sujeccion de las dos colas, he puesto un listos de madera entre dos costillas, con una tuerca empotrable, para atornillar las colas al ala, creo que es una buena idea.

de todas formas admito sugerencias de como mejorar esto.
Adjuntos
plano ala.jpg
costillas.jpg
Por sesa11
#1070197
Lo primero, que veo el ala algo corta con relaccion a las 3 vistas del avion original, quiza han ampliado las superficies de cola en el plano de RC.
Yo personalmente, dejaria fija la seccion de ala hasta la conexion con las colas. Mas rigidez y no tendria holguras ni lios de alargadores de cables y dejaria desmontable la seccion de ala desde el el encuentro hasta el final.
De todas las maneras esta muy bien lo que has hecho.
Supongo que todas las costillas tienen la cuerda constante, no?
Adjuntos
Spotez75.jpg
Spotez75.jpg (16.7 KiB) Visto 2306 veces
Por viajero
#1070263
Hola

Lo de la envergadura, tienes razon, he tenido que ampliar la distancia entre las dos colas, para que entrara la helice del motor que le voy a poner (me gusta volar a un tercio o como mucho 3/4 de motor a toda velocidad), con lo que forzosamente he de ampliar la superficie de cola, ademas asi creo que ganare estabilidad.

En cuanto a hacer desmontables la parte de las alas desde la cola hasta la punta, puffff, no se me ocurre como hacer un anclaje fiable, esa fue la causa de la rotura de un avion que me hice parecido, pero si ha alguien se le ocurre como que me lo explique, seria una opcion a tener en cuenta.

Las costillas, aunque den otra sensacion, son todas de la misma cuerda, tambien he ampliado la cuerda del plano para hacerlo mas parecido al real.
En fin que me plantea mas problemas que los que pensaba, pero ya se iran solucionando, por ahora empezare con el fuse, y seguire pensando en las alas y la cola, a ver como resuelvo el problema de anclajes.
Avatar de Usuario
Por Roberto Hector
#1070734
Bueno..creo que yo también he resuelto mis dudas.
Finalmente construí el radial simulado con el Saito 65.
Estoy entre el Farman 190 o el Renard R-17....
Adjuntos
Dummie FA65.jpg
Farman F-190.jpg
Renard R-17.jpg
Por viajero
#1070938
bonito trabajo con el motorya me explicaras como se hace.
Al final aprendere a construir bien y todo.

Perosnalmente me gusta mas el farman, creo que hasta volara mejor, pero los dos tienen su encanto, yo empece ya la construccion del potez, en breves pondre algunas fotos
Por viajero
#1071291
Interesante el simulado.
Si viendoos al final aprendere a construir, aunque me queda muchisimo por aprender.

por ahora he empezado a cortar piezas, despacio, por supuesto, ya que he de ir detectando fallos de diseño antes de montarlas, ya he visto alguno, con lo que me ralentizara un poco.

En breve ya ire poniendo fotos.

¡Elija que Addons deben funcionar, utilice sólo lo que realmente necesita!