miliamperios.com

Bootstrap Framework 3.3.6

Más de una docena de componentes reutilizables construidos para proporcionar iconografía, menús desplegables, grupos de entrada, navegación, alertas, y mucho más ...

Fundado el 31 de marzo del 2003.

Moderador: Moderadores

Avatar de Usuario
Por cumb 2536
#819852
Bueno este año he comenzado a competir con mi MALLAM con cola en "T"
me ha sorprendido lo bien que va , sube de muerte con angulos de70º-80º "sin colgarse , la motorizacion es un RAZOR RZ 2500 (antiguo de 3950 rpm/v) y reductora REISENAUER 5:1 helice 14x8 aeronaut camcarbon y el nucleo (en Z hecho por mi de 31 mm entre ejes)
los tiempos de subida 28-28-28- 28-28-45 seg y alcanzo alturas de 250 a 260 metros en el ultimo 270 mt
La bateria es HONG KONG DE 1000 milis 20c 7.4 v(2 elementos) pesa 46 gr (en E BAY cuesta 8 euros¡¡¡¡¡¡¡¡) y entrega mucha energia hasta el ultimo vuelo y queda a 8%-!0 % sin problemas de degradacion""
Subiendo 11 segundos puedo hacer mas de 3 min de planeo
El modelo pesa en orden de vuelo 485 gr
Esta forrado con icarex 30 gr/ m2y el estabilo con Mylar de 7.8 gr/m2
La niña de la foto es la hija de mi amigo MIGUE , NUEVO EN LA F5J CATALANA ""PILOTO DE CUIDADO""
El 26 de Abril hacemos EN MI CLUB ""CLUB AERONÁUTIC EGARA"el campeonato de cataluña F5J y además hacemos un OPEN ese dia ,con premiacion independiente a el CAMPEONATO, alli estaré
saludos
Manolo (Cubano diseñador y constructor de los MALLAM)
Adjuntos
MALLAM TTAIL SOLSONA.JPG
El timon esta hecho en D Box(carbono 190 gr/m2) y es extremadamente rigido
Avatar de Usuario
Por cumb 2536
#819876
Estas llevan el perfil mallam 4083021 (diseñado en el PROFILI 2.21)
Agregare los planos del fuselaje , estabilo y timon
saludos
Manolo (cubano)
Adjuntos
MALLAM  7  ALAS-Model.jpg
los planos los tengo en autocad 2007 y las piezas en solidworks
Avatar de Usuario
Por cumb 2536
#820092
ESTE ES EL QUE LLEVO AHORA

El mylar se pega con pegamento de contacto 3M77´¨o SUPER 3M77 (ambos SPRAY)
TAMBIEN SE PUEDE UTILIZAR COLA DE CONTACTO ,DISUELTA CON ""tolueno" Ó GASOLINA DE ""MECHEROS"", aplicada con pincel, dejar secar 2 horas ó 24 horas(mejor) despues CON PLANCHA COMO EL ORACOVER ""un poquito mas subido de temperatura""
Saludin
manolo Dr Carbono (cubano)
Adjuntos
plano estab trapezoidal 3.53 dm-Model.jpg
el estabilo pesa de 8 a 10 gr forrado con Mylar de 7gr/m2 transparente ó silver
Copia de estabilizador original-Model.jpg
este lo llevan los modelos 3,4,5,6,8
lluis lópez, Orviz,j uan perez, coronillas , etc
Avatar de Usuario
Por Juande
#820229
Manolo,
gracias por compartir un chorrito del pantano de sabiduría que atesoras, debe ser una gozada hacer volar (y que responda bien) una máquina que has dibujado y luego construido por tus propios medios.
Espero que aciertes muchas dianas.
Otro aficionado de la F5J que te agradece el entusiasmo y la sabiduría compartidas.
Un saludo,
Juande
Avatar de Usuario
Por cumb 2536
#820284
tengo dos modelos uno con direccion(timon) y otro que giro con alerones
(deriva fija)
El perfil utilizado en los tres ,es el HT-08 de Mark Drela (está en el PROFILI 2.18), en el de cola en "T está modificado el % ,pondre los perfiles ploteados

El servo que llevo es el DYMOND D-37

Perdonen los JPG pero al pasarlo de dxf lo hago sin mirar mucho para terminar rapido pues tengo mucha faena en casa y con los modelos

manolo(cubano Dr carbono)
Adjuntos
TIMON MALLAM TTAIL[1]-Model.jpg
Cola en T" 2009
TIMON MALLAM 7[1]-Model.jpg
sin ruder
timon direccion MALLAM-Model.jpg
con ruder
ensamble_morrop_mallam_8.jpg
dibujo SOLIDWORKS del morro que llevo ahora pondre fotos
ensamble_morrop_mallam_8.jpg (8.42 KiB) Visto 1494 veces
Última edición por cumb 2536 el Jue, 30 Abr 2009 7:22, editado 1 vez en total.
Avatar de Usuario
Por cumb 2536
#830760
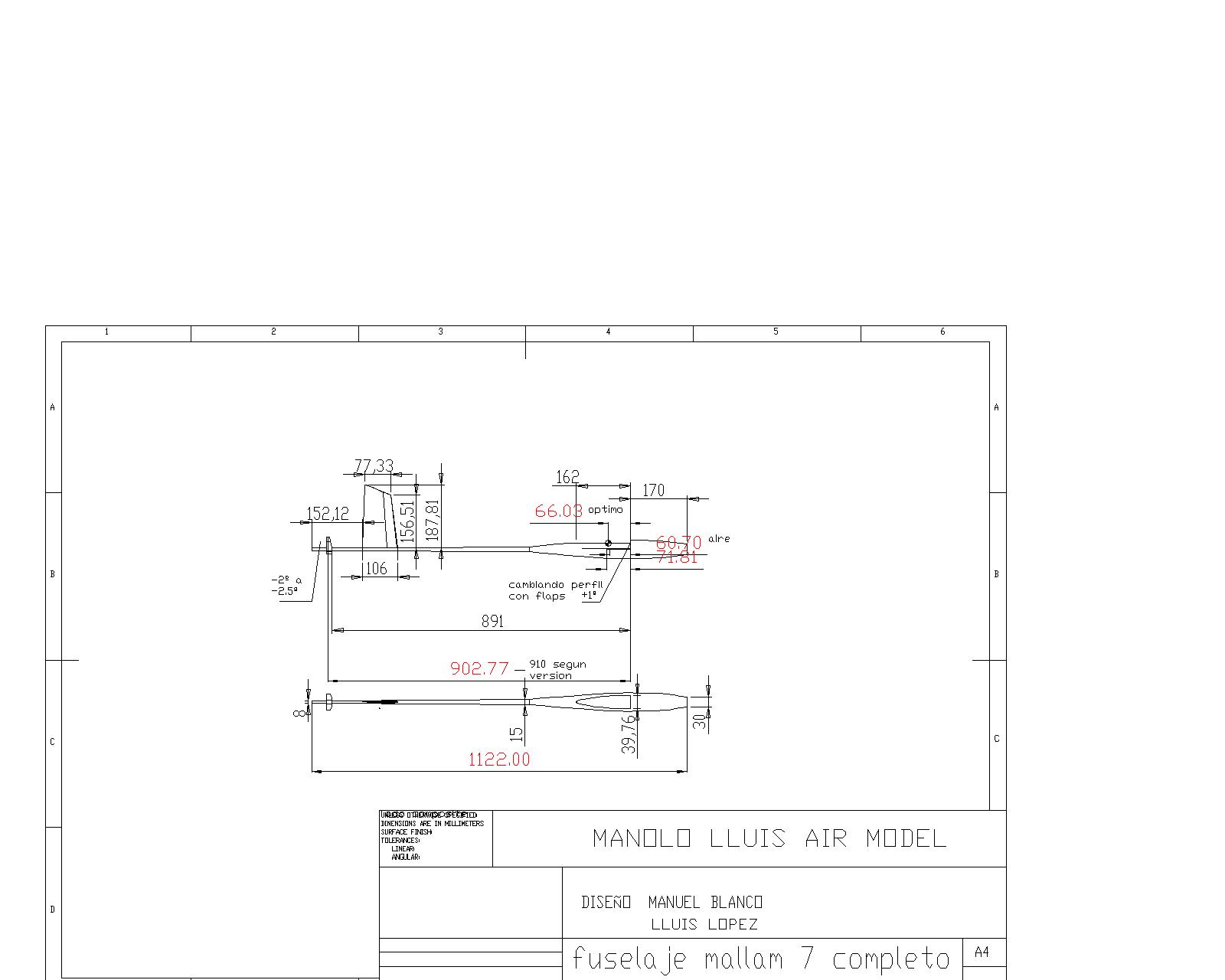
Bueno aunque han mandado este post a la colita yo continuo poniendo planos
Este es el del modelo para baterias de NiCd de 7 elementos, 258 gr; Para LIpo lleva el morro tipo PINOCHO " mas largo para poder balancear mejor con 50 gramos las demas medidas son iguales
Pondre el del nuevo mas tarde
manolo (Cubano)
Adjuntos
fuselaje mallam 7  C G-Model.jpg
plano fuselaje Mallam 7
Avatar de Usuario
Por Me-PiCa
#831073
Acojonante Manolo. Eres el crack del carbono.
Avatar de Usuario
Por cumb 2536
#831104
Bueno lo del nombre MALLAM significa;
Ma-- manolo
LL -- lluis
A -- air
M-- model
LLuis López y yo comenzamos el calvario de diseñar un modelo para la F5J existente (hace 4- 5 años) las pasamos canutas , quedabamos de los ultimos en casi todos los concursos , LA GENTE DECIA QUE PARA QUE TANTA TECNICA DE CARBONO etc , poco a poco mejoramos , el antiguo perfil era el A-18 de Randy Archer parecido a los AG (Dr Drela ) pero con mas curvatura inferior, en el estabilo un gotingen 622 7%
Al final y tras varios meses en el ordenador con un sofware de aerodinamica logre un perfil que con las cargas alares que utilizabamos nos diera un buen rendimiento ,tanto en subida como en planeo , para Re
32000 a 80000 , ajustando la fineza cl/cd que fuera mejor a los S- 4083
MH-32 , AG-25 , S-3021, que en esta modalidad son muy utilizados, además , tendria que tener buen comportamiento con flaps
La planta alar seleccionada fué SCHUEMANN que se prestaba a la utilizacion de las D Box (rectas) llegando a tener buen comportamiento
a bajas velocidades ,donde la entrada en perdida de los marginales es muy perjudicial en el aterrizaje (sobre todo para pilotos malos como yo)
Con el modelo mejorado con el nuevo perfil (MB4083021) (manuel blanco) llegamos a subir 247 metros en 34 seg con baterias ni cd
El aterrizaje con flaps y aleron ""ERA COMO IR ENTRE RAILES DE TREN"
TUDO UN LUJO
Pondre datos tecnicos de los parámetros del modelo
Continuará¡¡¡¡¡¡
saludos
Dr Carbono (Cubano)
Última edición por cumb 2536 el Sab, 02 May 2009 10:22, editado 2 veces en total.
Avatar de Usuario
Por juan jose boullosa
#831604
Muy interesante tus trabajos , yo por si acaso ya los tenia fotografiados y calcados :wink: (joder que pirata) es broma ya me diste tu mismo el nuevo timon al ver que lo miraba como si lo quisiera comer.... :roll:

Desde luego eres el number one de la F5J y del diseño de veleros :shock: .Los demas te seguimos y aplicamos lo que esta en nuestra mano.
un saludo

¡Elija que Addons deben funcionar, utilice sólo lo que realmente necesita!